Проект дома "АБ - 0507"
Характеристики
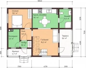
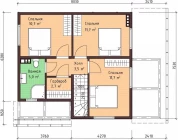
Площадь
107.80 м2
Этажность
Двухэтажный
Габариты
7х10 м
Материал стен:
Арболитовый блок
С террасой
Да
Выберите материал
Стоимость от
-20%
руб
руб
По данному проекту построено
48 домов
Предложение не является публичной офертой. Стоимость является ориентировочной и приведена исключительно в информационных целях.
Описание проекта
Проект "АБ - 0507" - хороший двухэтажный дом для постоянного проживания из арболитовых блоков с террасой. Площадь гаража 107.80 м2 с размерами 10 на 7.
Компания Гарант Строй осуществляет качественное строительство дома "АБ - 0507". Обращаем ваше внимание, на то, что стоимость строительства напрямую зависит от комплектации и технологии строительства. Для предоставления подробной информации и консультирования, можно обратится по номеру: +7 (969) 966-81-79.
Компания Гарант Строй осуществляет качественное строительство дома "АБ - 0507". Обращаем ваше внимание, на то, что стоимость строительства напрямую зависит от комплектации и технологии строительства. Для предоставления подробной информации и консультирования, можно обратится по номеру: +7 (969) 966-81-79.
Получите проект на почту
Оставьте заявку на получение проекта на почту
Выгодный кредит на строительство
Ипотека - легко и доступно!
от 5%
Первонач. взнос от 10%
до 30 лет
Высокий кредитный лимит
до 10 000 000 руб
Ипотечный калькулятор
Расчитайте стоймость ипотеки онлайн
Стоимость дома
1 000 000
₽
Ставка по кредиту
5
%
Срок
10
лет
Первоначальный взнос
100 000
₽
10
%
Ваш платеж
от
9 750
₽/мес
Сумма кредита
900 000
₽
Срок
10
лет
Сделай первый шаг к красивому участку
Оставьте заявку и наш специалист свяжется с вами в ближайшее
время
2
Согласуем
Подберем проект для Вас, внесем изменения под
параметры вашего дома
3
Подпишем
Обговариваем сроки работ и удобный для Вас способ
оплаты, заключаем договор
4
Доставим
Бережно доставим и выгрузим материалы для
строительства
5
Построим
Проведем полный комплекс строительных и отделочных
работ
6
Сдадим
Вы принимаете нашу работу, подписываете акт
сдачи-приемки дома, после заезжаете в дом своей мечты
Спецпредложения
Наша компания предлагает выгодные предложения. Подробности уточняйте у менеджера.
Почему лучше заказывать дом у нас
Необходимо реализовать успешное строительство с полноценным выполнением установленных законодательством требований? Компания «Горизонталь» в своей работе обладает всем необходимым, чтобы квалифицированно реализовать проект любой степени сложности! Мы используем только высококачественные стройматериалы и применяем успешные современные технологии!
Часто задаваемые вопросы
Какие виды блоков вы используете для строительства домов?
Мы используем различные виды блоков, включая газобетонные, пенобетонные и керамзитобетонные блоки. Каждый тип материала подбирается в зависимости от требований проекта и пожеланий клиента. Как долго длится строительство дома из блоков? Средний срок строи
Чем занимается ваша компания?
Мы специализируемся на строительстве и реконструкции промышленных и коммерческих объектов, а также на капитальном ремонте зданий разного назначения.
Какие преимущества работы с вашей компанией?
Нашими основными преимуществами являются опыт более 10 лет, использование современных технологий и материалов, а также индивидуальный подход к каждому проекту.
Какой порядок работы с клиентом?
Мы начинаем с консультации и разработки проекта, после чего подписываем договор и приступаем к строительным работам. На всех этапах заказчик информируется о ходе выполнения работ.
Какие технологии и материалы вы используете?
Мы используем современные строительные технологии и материалы высокого качества, что позволяет создавать долговечные и энергоэффективные здания.
Не нашли ответ на свой вопрос?
Задайте его нашим специалистам
Контакты
Средняя оценка построенного дома - 9.2 на основании 6 отзывов и 6 оценок








